Productus
Urbana distribution network rmu
  • Urbana distribution network rmuUrbana distribution network rmu
  • Urbana distribution network rmuUrbana distribution network rmu
  • Urbana distribution network rmuUrbana distribution network rmu
  • Urbana distribution network rmuUrbana distribution network rmu
  • Urbana distribution network rmuUrbana distribution network rmu
  • Urbana distribution network rmuUrbana distribution network rmu

Urbana distribution network rmu

KXRM6-12 Type Urban Distribution Network RMU produced by KEXR, a professional power transmission and distribution equipment manufacturer in China, is a 12kV compact gas-insulated ring network cabinet, which uses environmentally-friendly insulating gas as insulating medium and is suitable for ring network power supply, cable branching and terminal protection of distribution network. Hoc productum habet characteres de miniaturization, intelligentia et princeps reliability, quae occurrit in progressionem necessitates modern dolor eget.
Model: Kxrm6-12
Notam: Kexr

○ Design pluma de Kxrm6 Type Urbanus distributio Network RMU

Kxrm6 Type urbana distribution network rmu adoptat modularis consilium, et ejus basic moduli unitatum sunt onus switch moduli, compositae electrica appliance moduli et alia speciale modules. Aliquid ex his modules format commune arca structuram. In combined moduli, quodcumque munus dure idem quod internum structura basic moduli.


○ urbana distribution network rmu usura condiciones

Kxrm6-12 Type urbana distribution network rmu est idoneam ad altum et humilis temperatus (+ XL ℃ ~ -40 ℃), humiditas, pulvis, sal pollutio, mines, alta altitudo (l000) et alias. Brevi-terminus immersionem in aqua intra XXIV horas non afficit usum. Nota: Si altitudo sit altior, placere indicant specifica altitudo.

○ Signa

Urbana distribution network RMU occurrat signa inferius

▶ International Signa

Iec60056, IEC60298, IEC60129, IEC60420, IEC60265, IEC60694, etc.

▶ Standard Sinis

GB3804, GB3906, GB11022, etc.

○ Main Technical parametri de Kxrm6-12 Type Urbanus distributio Network RMU

Urban Distribution Network Rmu


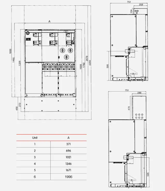
○ Structural drawing et dimensiones urbana distribution network RMU

Urban Distribution Network RmuUrban Distribution Network RmuUrban Distribution Network RmuUrban Distribution Network Rmu



Hot Tags: Urbana distribution network rmu
Mitte Inquisitionem
Contactus info
Nam inquiries de funem genere arca archa, princeps voltage switchgear, humilis voltage switchgear et pretium album, placere relinquere vestri email ad nos et in tactus in XXIV horas.
X
Crusulis utimur ut meliorem experientiam pasco tibi praebeamus, situm negotiationis et personalize contentus analyse. Hoc situ utendo, ad nostrum crustulorum usum consentis. Privacy Policy
Reject Accipe